Wir bauen Ihr Traumhaus für jedes Budget
+41 71 558 88 99
info@vision-haus.ch
Home
Fertighäuser
Über uns
FAQ
Kundenbewertung
Referenzen
Kontakt
Verkaufsobjekte
Anfrage
Home
Fertighäuser
Über uns
FAQ
Kundenbewertung
Referenzen
Kontakt
Verkaufsobjekte
Dua
Objekt Anfragen
zurück zur Übersicht
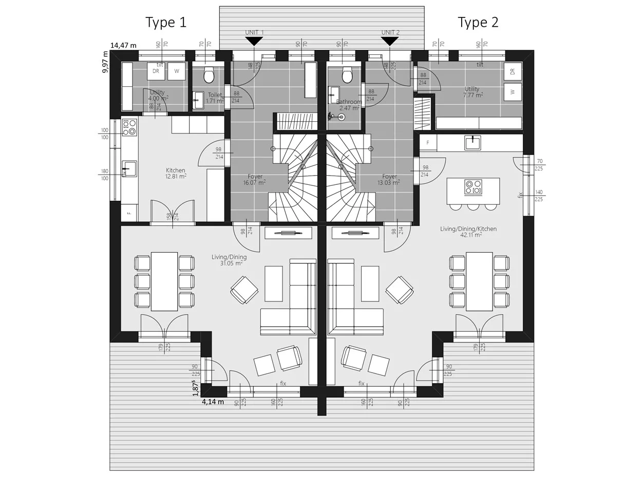
Eigenschaften
Kollektion:
Duplex
Bruttofläche:
304.1 m²
Anzahl Etagen:
E+1
Dachtypen:
Flachdach
Pultdach
Satteldach
Walmdach
Dachneigungen:
Satteldach 35°
Walmdach 25°
Flachdach 7°
Terrasse:
Satteldach 15.52m²
Preis ab:
425'700 CHF
Grundrisse
Erdgeschoss
1.Stock
E
1