Wir bauen Ihr Traumhaus für jedes Budget
+41 71 558 88 99
info@vision-haus.ch
Home
Fertighäuser
Über uns
FAQ
Kundenbewertung
Referenzen
Kontakt
Verkaufsobjekte
Anfrage
Home
Fertighäuser
Über uns
FAQ
Kundenbewertung
Referenzen
Kontakt
Verkaufsobjekte
Hillside
Objekt Anfragen
zurück zur Übersicht
Eigenschaften
Kollektion:
Family
Bruttofläche:
146 m²
Anzahl Etagen:
E+1
Dachtypen:
Flachdach
Pultdach
Satteldach
Walmdach
Dachneigungen:
Satteldach 42° und 25°
Walmdach 25°
Pultdach 7°
Preis ab:
369'300 CHF
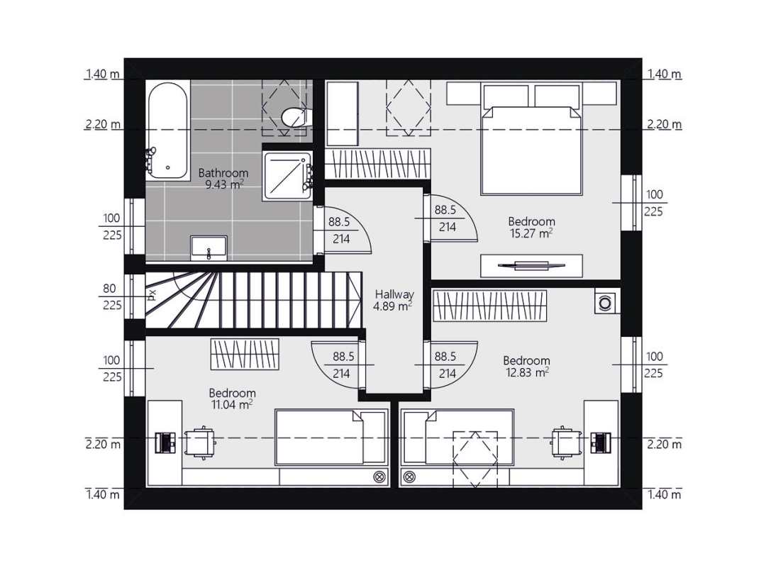
Grundrisse
Erdgeschoss
1.Stock
E
1